🍪 We bakken wat digitale cookies om je websitebezoek zoet te maken! Geen zorgen, ze laten geen kruimels achter in je browser.
Lees het recept
Oppeuzelen!
Home
Gemaakt
About
Contact
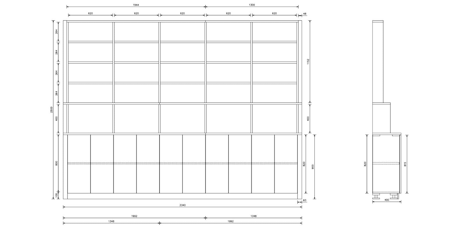
Boekenkast
Ontwerp en eindresultaat